Gemeindezeitung - page 5

5
D
ie
S
onnseiten
N
ummer
50 - A
pril
2015
G
emeinde
Blick in die Gemeindestube
Aus der Sitzung vom
18.12.2014
Neuerlassung eines Bebau-
ungsplanes
Der Gemeinderat hat mit 8:3
Stimmen gemäß den Bestim-
mungen des Tiroler Raum-
ordnungsgesetzes 2011 die
Neuerlassung eines Bebau-
ungsplanes im Bereich der
Gp. 211/2, KG Untergaim-
berg (DI Walter Frey) erlas-
sen. Auf dem gegenständ-
lichen Grundstück ist die
Errichtung eines Mehrfami-
lienwohnhauses (Eigentums-
wohnungen) geplant.
Baukostenzuschuss
Der Gemeinderat hat ein-
stimmig einen Baukostenzu-
s c hu s s i n d e r Höh e von
€ 887,44 für ein Bauvorhaben
für Wohnzwecke gemäß den
derzeit gültigen Richtlinien
für die Gewährung von Bau-
kostenzuschüssen genehmigt.
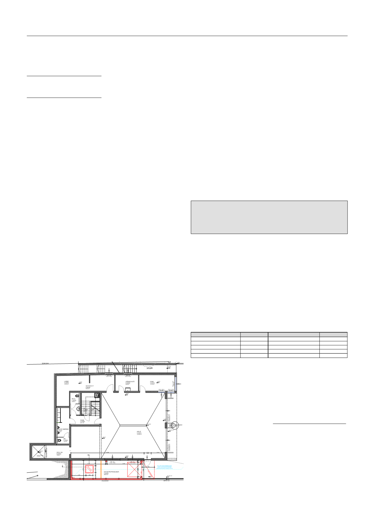
Katastrophenlager
FF
Gaimberg – Vergabe der
Planungsarbeiten
Der Gemeinderat hat mehr-
heitlich (1 Gegenstimme)
beschlossen, für die Erstel-
lung der Einreichunterlagen
(Einreichpläne) für den Zu-
bau eines Katastrophenlagers
zum Feuerwehrhaus die Ar-
chitektengemeinschaft Dipl.
Ingre. Griessmann-Scherzer-
Mayr, 9900 Lienz, zu beauf-
tragen (Architektenhonorar
von € 720,-- inkl. MwSt.).
Ankauf Verkehrsspiegel
Der Gemeinderat hat einstim-
mig beschlossen, über die
Einkaufsplattform GemNova
einen beschlags- und verei-
sungsfreien Verkehrsspiegel
der Fa. Forster Verkehrs- und
Werbetechnik GmbH für den
Bereich der Zettersfeldstraße
(Landesstraße L73) anzu-
schaffen; Ausführung: Alu,
Größe: 1000 x 800 mm, Preis:
€ 1.263,12 inkl. MwSt.;
Übernahme der Gp. 397,
KG Untergaimberg, in das
öffentliche Gut
Der Gemeinderat hat auf
Antrag der Bringungsge-
meinschaft Gerlweg den
Beschluss gefasst (1 Gegen-
stimme), die Liegenschaft
Gp. 397, GB 85040 Unter-
gaimberg, im Ausmaß von 82
m² in das öffentliche Gut der
Gemeinde Gaimberg zu über-
nehmen. Die Grundparzelle
soll nach Abschluss einer
entsprechenden Vereinbarung
unentgeltlich und völlig frei
von jeglichen Kosten für die
Gemeinde Gaimberg in ihr
öffentliches Gut übertragen
werden.
Festsetzung des Jahresvor-
anschlages 2015 der Ge-
meinde Gaimberg
Der Gemeinderat hat auf
Antrag der Bürgermeiste-
rin einstimmig beschlossen,
den Jahresvoranschlag der
Gemeinde Gaimberg für das
Haushaltsjahr 2015 wie folgt
festzusetzen:
Festsetzung des Jahresvor-
anschlages 2015 der Ge-
meinde Gaimberg Immobi-
lien KG
Der Gemeinderat hat den
Voranschlag für das Jahr
2015 der „Gemeinde Gaim-
berg Immobilien KG“ mit 10
Ja-Stimmen und 1 Enthaltung
mit Einnahmen sowie Ausga-
ben in Höhe von € 10.200,--
genehmigt.
Rücklagenentnahme
Der Gemeinderat hat mehr-
heitlich (1 Gegenstimme)
beschlossen, die bestehen-
de Sonderrücklage „Geh-
steig Zettersfeldstraße“ bei
der Lienzer Sparkasse über
€ 10.216,16 aufzulösen und
zur Teilfinanzierung des Geh-
steigprojekts Zettersfeldstra-
ße L73 (Bauabschnitt Jeller
bis Brennerle) gemäß Finan-
zierungsplan vom 18.09.2014
zu verwenden.
Rücklagenzuführung
Der Gemeinderat hat einstim-
mig beschlossen, folgende
Rücklagen gem. § 83 TGO
2001 zur Vorsorge für künf-
tige Erfordernisse aufzusto-
cken:
Zuführung an Rücklage für
„Aus- und Umbau Volks-
schulgebäude“ € 15.000,--;
Zuführung an Rücklage „Ge-
meindefahrzeug“ € 10.000,--;
Zuführung an „Abfertigungs-
rücklage“ € 5.000,--;
Breitbandausbau – Projekt-
planung Gaimberg
Der Gemeinderat hat ein-
stimmig beschlossen, die
Fa. LWL Lichtwellenleiter
Competence Center, 6500
Landeck, für die Ausarbei-
tung eines LWL-Konzeptes
(FttH - Fibre to the Home)
inkl. LWL-Rohrverlegeplan,
Materiallisten, Kostenschät-
zungen etc. für die Gemeinde
Gaimberg lt. Angebot vom
05.12.2014 zu beauftragen.
Die Auftragssumme beträgt
€ 4.040,40 inkl. MwSt. Die
bereits erfolgte Bestandser-
hebung wurde vom Planungs-
verband 36 finanziert.
Geme i ndegut sagrarge -
meinschaft Gaimberg
Genehmigung von Ausgaben
Der Gemeinderat hat auf An-
trag der Substanzverwalterin
mehrheitlich (1 Gegenstim-
me) div. Ausgaben bzw. Zah-
lungsaufträge der Gemein-
degutsagrargemeinschaft
Gaimberg für den Zeitraum
seit 25.11.2014 in der Höhe
von insgesamt € 38.699,89
Grundriss für Zubau Katastrophenlager.
Benennung
Ausgaben
Benennung
Einnahmen
Tilgung Hypo Tirol Bank
€ 8.100,-- Mieteinnahmen
€ 9.200,--
Zinsen Hypo Tirol Bank
€ 600,-- Kaptaltransferzahlung Gde.
€ 1.000,--
Öffentliche Ausgaben
€ 900,-- -----
-----
Sonstige Ausgaben
€ 600,-- -----
-----
Gesamtausgaben
€ 10.200,-- Gesamteinnahmen
€ 10.200,--
Jahresvoranschlag 2015 – Gemeinde Gaimberg
Einnahmen
Ausgaben
Ordentlicher Haushalt
€ 1.690.100,00
€ 1.690.100,00
Außerordentlicher Haushalt
52.000,00
52.000,00
Gesamthaushalt
€ 1.742.100,00
€ 1.742.100,00
1,2,3,4 6,7,8,9,10,11,12,13,14,15,...52
Powered by FlippingBook